티스토리 뷰
목차
이제 꽃샘 추위도 잦아드는 것 같은데요 화창한 주말에 궁 나들이 한 번 다녀오세요

1. 창경궁 봄꽃 개화시기 및 봄꽃 명소
창경궁의 봄꽃들은 3월 25일부터 4월 10일까지 순차적으로 만개할 것으로 예상합니다. 추천코스에 따라 전각과 봄꽃이 어우러진 조화로운 모습과 춘당지 일대를 감싸고 있는 창경궁 숲과 관천대가 자리하고 있는 궐내각사 터에서 각각 다른 멋의 봄꽃을 보실 수 있습니다.
추천코스 - 약 40분 3.5km
옥천교 - 명정전 화계 - 경춘전 화계 - 환경전 - 통명전 뒤 언덕길 - 춘당지 - 대온실 - 옥쳔교

2. 2024년 동궐도와 함께하는 창경궁 특별관람 해설 프로그램 안내

창경궁 관리소에서 동궐도를 통해 현재 빈 터로 남아 있는 창경궁 궐내각사 및 동궁 터 일대의 옛 모습을 살펴보고 현재 창경궁의 전각과 동궐도상의 전각 모습의 비교를 통해 창경궁의 엣모습을 재조명하고 이해할 수 있는 기회를 제공 테마 해설 프로그램을 진행합니다.
▶ 기 간 : 2024. 3.17.(일)~5.12.(일) 매주 일요일 11:30, 13:30 /2회 진행
※ 기관사정에 따라 기간 및 시간 변경될 수 있습니다.
▶ 대상/방법 : 일반인 / 회당 20명 현장 선착순
▶ 장 소 : 창경궁 일원(궐내각사 터 일원, 외전 , 내전 등)
▶ 참 가 비 : 무료 (단, 입장료 별도)
▶ 모집/출발장소 : 옥천교 앞(남행각 방향)
3. 희정당 내부관람과 궁중음악으로 즐기는 창덕궁의 밤!
‘오얏꽃등 밝힌 창덕궁의 밤’
- 4월 3일부터 4월 6일까지 4일간 창덕궁 내 일부 전각을 깊이 있는 심화 해설과 함께 즐길 수 있는 ‘창덕궁 깊이보기, 희정당’야간관람과 국립국악원 정악단과 무용단의 공연을 연계한 「오얏꽃등 밝힌 창덕궁의 밤」을 운영합니다.
* 이용 시간: 총 약 80분 소요
(희정당 관람) 1회차 18:30, 2회차 18:40
(대조전 공연) 국립국악원 19:30

대조전과 더불어 조선 시대 왕과 왕비가 생활하던 창덕궁의 내전 영역에 속하는 희정당(熙政堂)은‘밝은 정사를 펼치다’라는 의미를 담고 있는 전각입니다. 조선 후기 편전(便殿)인 선정전(宣政殿)을 대신하여 업무보고, 국가정책 토론 등 왕의 집무실로도 활용되었습니다. 현재 남아 있는 희정당은 1917년 화재로 소실되었다가 1920년 재건한 것으로 전통건축 방식과 당시 근대문물의 양식이 혼재되어 있고, 조선 후기와 근대 왕실의 생활환경도 비교적 잘 남아 있는 곳입니다.
평상시에는 문화유산 관리를 위해 내부 관람이 제한되지만, 2019년부터 내부공간을 당시 모습으로 되살리는 사업을 추진해 천장과 마루, 창호, 벽지, 카펫, 전등 등의 재현과 보수·정비를 하여 일부 권역이 우선 공개된 바 있습니다.
희정당 외현관과 동행각, 중앙홀을 따라 50분간 진행되는 희정당 야간관람에서는 장식등(샹들리에)을 비롯하여 근대시대의 다양한 전등으로 중앙 접견실과 귀빈실, 복도 등 권역 전체에 불을 밝힌 모습을 볼 수 있어 불 켜진 창덕궁의 아름다운 야경을 오롯이 느낄 수 있는 기회가 될 것입니다.
대조전 월대 권역에서 30분간 진행되는 공연에서는 조선 왕실에서 향유하던 궁중음악을 중심으로 창덕궁 대조전에서 태어난 ‘효명세자’가 남긴 시를 노래한 시조와 궁중무용까지 함께 즐길 수 있어 창덕궁의 역사적 가치와 우리 음악의 멋을 동시에 느낄 수 있는 품격 있는 무대가 될 것입니다.
ㅇ 기 간 : 4.3.(수) ~ 4.6(토)
- 이용시간: (관람) 1회차 18:30, 2회차 18:40/ (공연) 19:30~20:00
ㅇ 장 소 : 희정당(내부관람), 대조전 월대(공연)
ㅇ 대 상 : 중학생 이상의 일반인(회당 15명)
ㅇ 내 용 : 희정당 내부 관람+대조전 야외 공연
ㅇ 접수방법 : 인터파크티켓 (https://tickets.interpark.com)
ㅇ 예약오픈 : 3. 26.(화) 14:00~
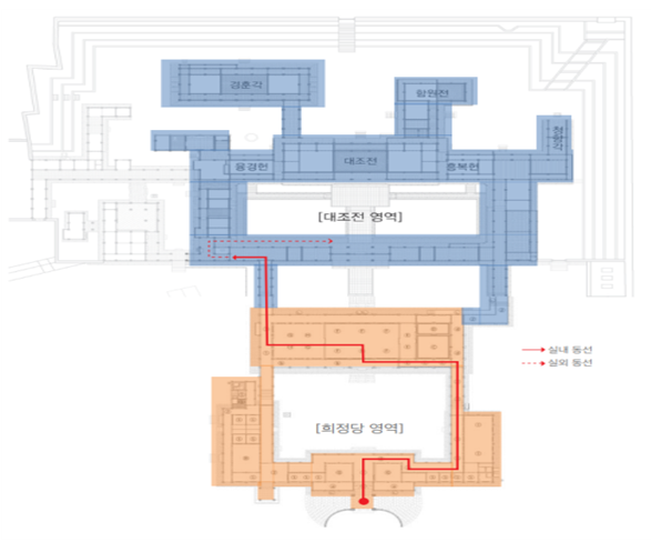
[주요동선]
희정당 외현관(입구) → 희정당 동행각(내부관람 시작) → 희정당 중앙홀 →
희정당·대조전 복도각→ 대조전 남행각(내부관람 끝) → 대조전 월대 권역(야외공연)

[행사당일]
ㅇ 접수확인 : 1회차(18:10~18:25)/2회차(18:10~18:35)
ㅇ 접수장소 : 창덕궁 금호문 앞
(예매번호와 신분증을 소지하시고, 금호문에서 확인후 리시버 및 패찰을 수령하시기 바랍니다.)